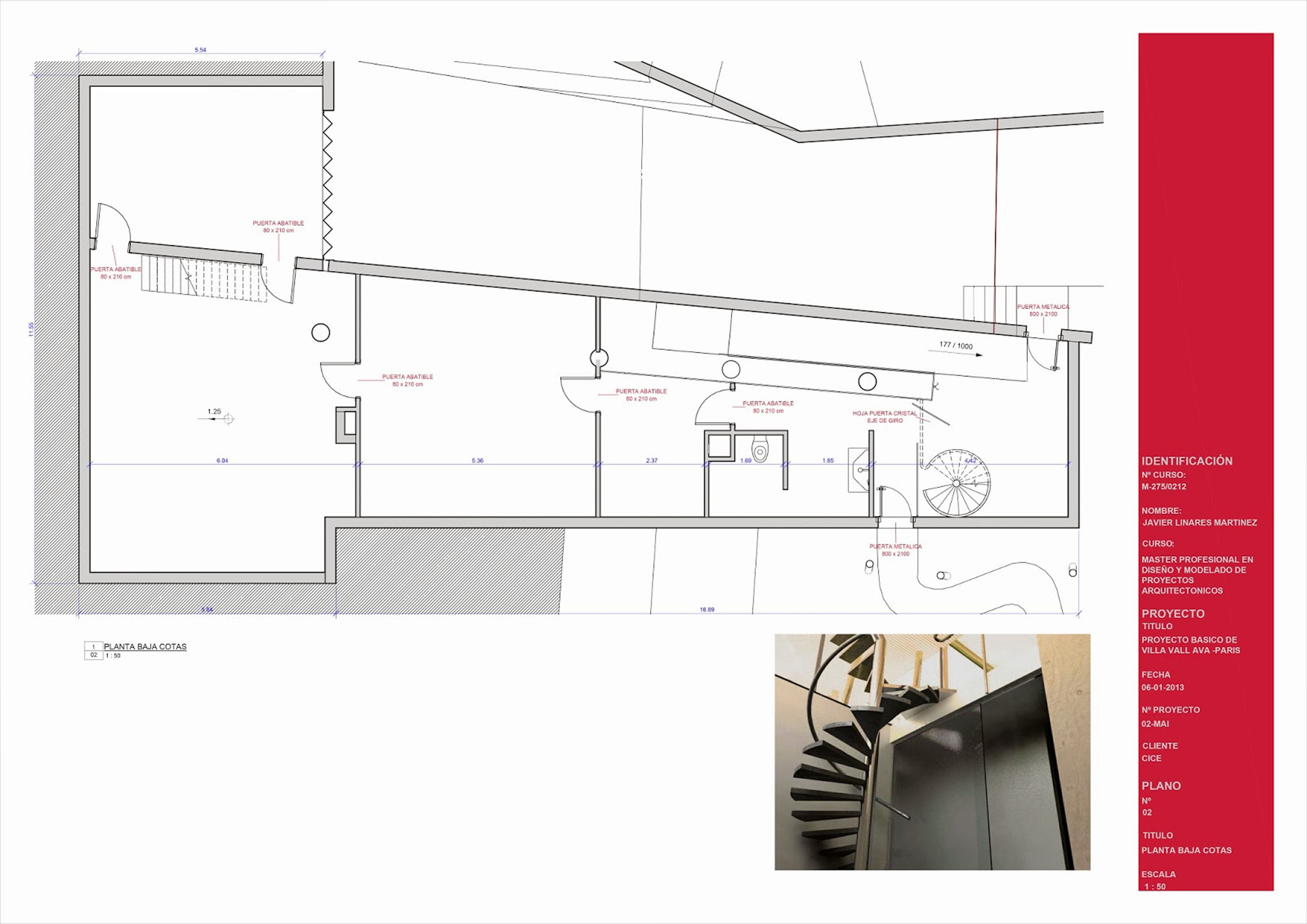
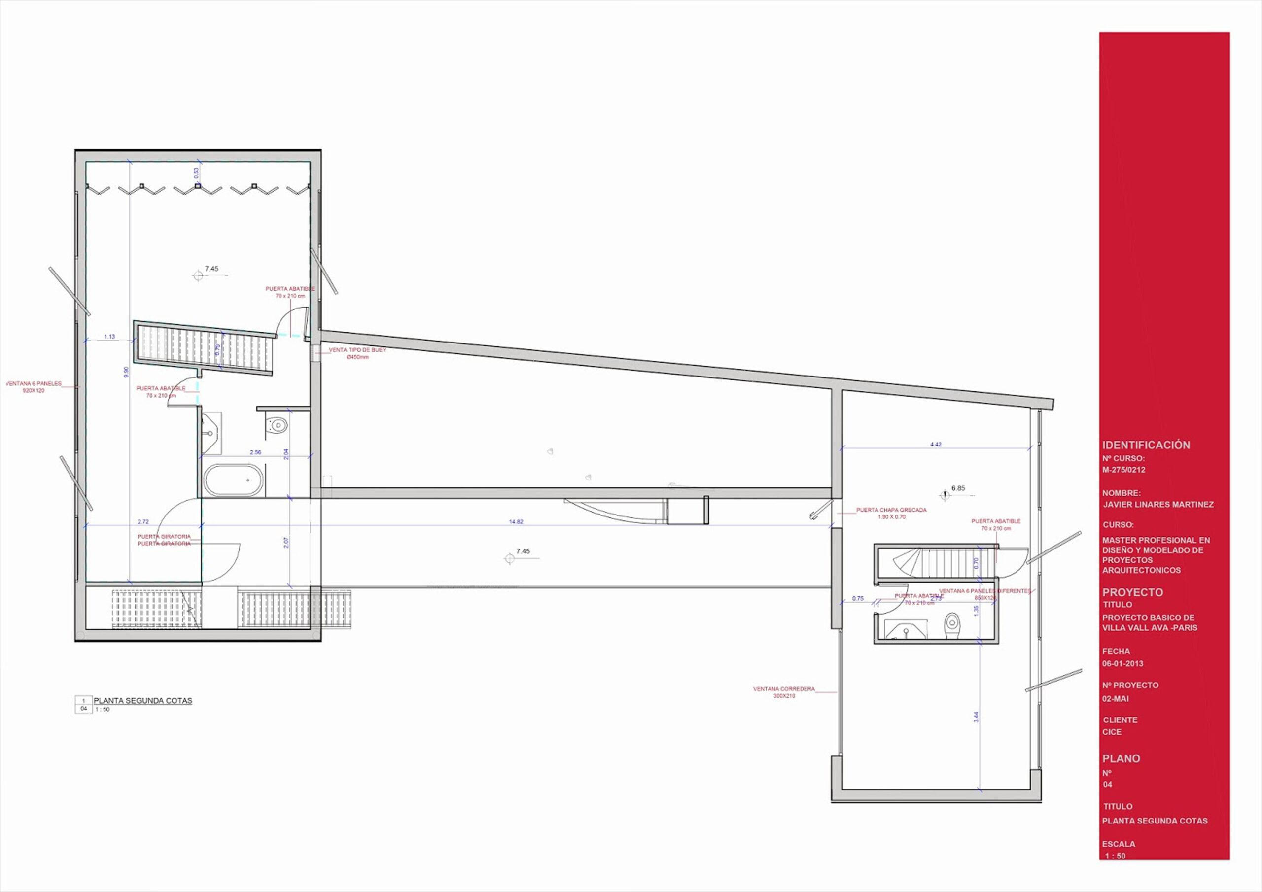
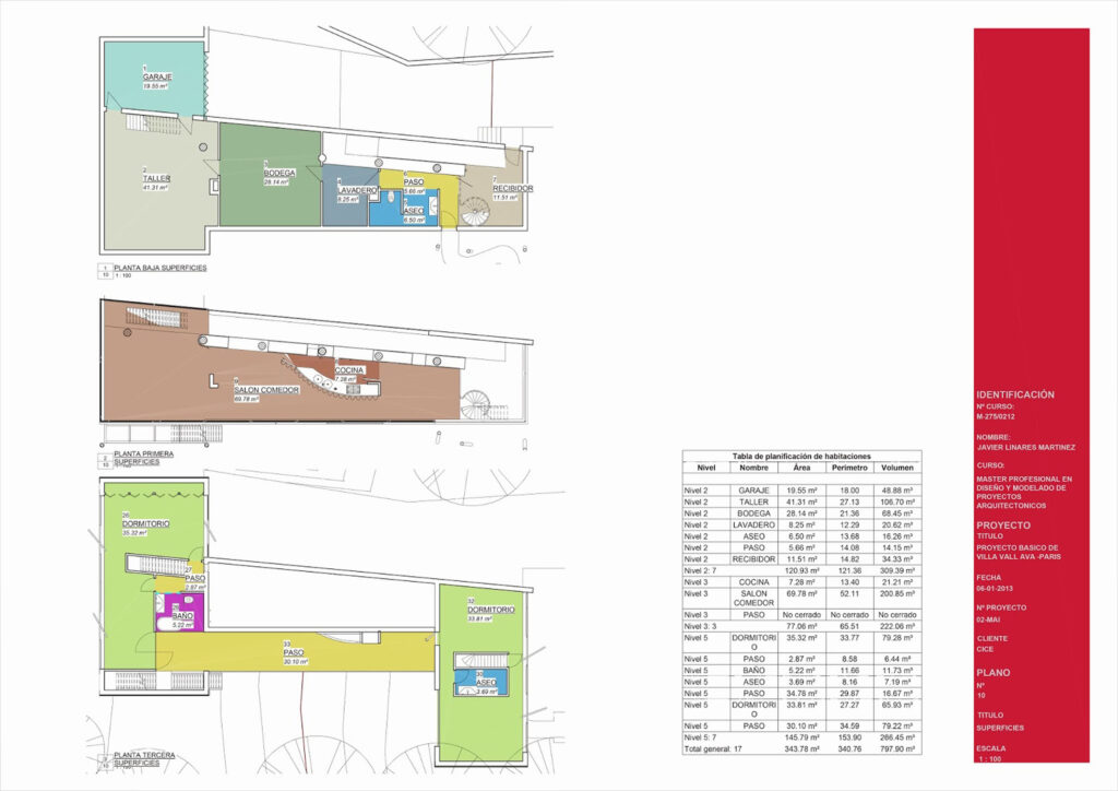
Modelado de proyectos BIM
Proyecto: Vivienda Ubicación: Saint-Cloud Información: Modelado BIM LOD 300
Proyecto:
Vivienda
Ubicación:
Saint-Cloud
Información:
Modelado BIM LOD 300
Modelado BIM
San Roque